平塚市南金目第18 Ⅰ期 新築一戸建て 全7棟 9号棟

2,780万円

神奈川県平塚市南金目

小田急小田原線「東海大学前」駅徒歩39分

東海道本線「平塚」駅バス29分神奈川中央交通「南金目」停歩2分

小田急小田原線「鶴巻温泉」駅バス10分神奈川中央交通「堀町(神奈川県)」停歩9分

価格
2,780万円
間取り
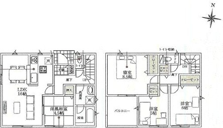
4LDK
土地面積
118.30㎡
所在地
神奈川県平塚市南金目
交通

小田急小田原線東海大学前」駅 徒歩39分

東海道本線平塚」駅 バス29分 神奈川中央交通「南金目」 停歩2分

小田急小田原線鶴巻温泉」駅 バス10分 神奈川中央交通「堀町(神奈川県)」 停歩9分

建物面積
98.82㎡
築年月
2025年11月(予定)

物件の特徴

  • バストイレ別

  • 室内洗濯機置場

  • TVモニタ付きインターホン

  • カウンターキッチン

  • 浴室乾燥機

セールスポイント

ファミリー向けのポイント、平塚市立金目小学校が徒歩3分のところにあります。生活を充実させる利便性が高い新築の戸建て物件です。外室時に通る場所に玄関収納があると綺麗な玄関が保てます。平塚市の小田急小田原線東海大学前近くで住まい探しをするのであれば、当社スタッフにお任せください。多種多様な不動産情報の中から、お客様に合ったものをご紹介致します。

ポイント

全室東南向き 緑豊かな住宅地 ファミリー向け 収納豊富 フローリング

担当者のコメント

児玉 (こだま)

浴室乾燥機のあるお風呂場は洗濯物を干すときにも便利です。顔が見える安心のTVインターホン付きです。購入価格2,780万円と、ニーズの高い価格帯の物件です。ゆったりとしたくつろぎの空間のある、4LDKの物件です。住まいの環境はアナタだけでなく、ご家族の生活を大きく左右するものです。それだけ大切なものだからこそ、私たちにお任せください。

基本情報

販売戸数
7戸
総戸数
7戸
間取り / 詳細
4LDK
向き
-
建物面積(坪数)
98.82㎡(29.89坪)
土地面積(坪数)
118.30㎡(35.78坪)
建ぺい率 /
容積率
60%/200%
築年月
2025年11月(予定)
駐車場 /
月額料金
有  車種による
土地権利
所有権
土地
(敷金 / 保証金)
- / -
建物構造
木造 / 2階建
傾斜地部分面積
-
路地状敷地
-
私道負担面積
-
セットバック
高圧線下面積
-
施工会社
-
用途地域
第一種住居
地目 / 地勢
宅地 / -
接道状況
一方(北 5.0m)
国土法届出要否
不要
都市計画
市街化区域
総区画数 /
販売区画数
7区画/7区画
現況
未完成
その他
法令上の制限
高度地区/準防火地域/敷地面積最低限度有
取引態様
仲介
引渡し
相談
取引条件の
有効期限
2025年12月26日

設備条件

設備条件
  • 陽当り良好 / 閑静な住宅地 / 新婚さん向け / ファミリー向け / 室内洗濯機置場 / フローリング / プロパンガス / 公営水道 / 公共下水 / 24時間換気システム / 電気有 / 耐震構造 / システムキッチン / カウンターキッチン / バス・トイレ別 / 浴室乾燥機 / 温水洗浄便座 / トイレ2ヶ所 / 床下収納 / 収納豊富 / TVモニタ付インターホン / 複層ガラス / 防犯カメラ
設備(その他)
    -

その他

物件番号
97832503
管理コード
-
建築確認番号
第R07SHC112047号
情報更新日
2025年12月12日
次回更新予定日
2025年12月26日
取扱会社
  • 湘南人不動産
  • 神奈川県藤沢市片瀬海岸1丁目12−4 ヴィルヌーブ片瀬江の島 1F
  • TEL:0466-47-4990
  • 国土交通大臣 (1) 第10616号
備考
小田急小田原線東海大学前駅周辺への引っ越しをお考えなら「平塚市南金目第18 Ⅰ期 新築一戸建て 全7棟」。通学区域内の小学校は平塚市立金目小学校で徒歩3分です。こちらは防犯カメラ付きの物件です。新築の戸建て物件です。平塚市エリアで新たな生活を始める第一歩を当社スタッフがお手伝い致します。住まい探しのことなら、ぜひ地域に特化した当社にお任せください。

平塚市南金目第18 Ⅰ期 新築一戸建て 全7棟の他の物件

  1. 11号棟

    4LDK (93.15㎡)

    2,680万円(95.14万円/坪)

支払いシミュレーション

月々の支払額
9.6
購入希望物件価格
万円
頭金
万円
金利
%
返済額(ボーナス1回分)
万円
返済期間

※ボーナスは自動で年2回分で計算されます。

近隣の物件

  1. 平塚市田村1丁目  新築戸建 

    平塚市田村1丁目

    4LDK (94.76㎡)

    3,280万円

  2. 平塚市出縄  全10棟 東栄港南台 新築戸建

    平塚市出縄

    2LDK (106.01㎡)

    3,480万円

  3. 平塚市中原2丁目 戸建

    平塚市中原2丁目

    4LDK (100.84㎡)

    2,560万円

  4. 平塚市長持 戸建

    平塚市長持

    4LDK (96.88㎡)

    3,200万円

平塚市南金目第18 Ⅰ期 新築一戸建て 全7棟

平塚市南金目第18 Ⅰ期 新築一戸建て 全7棟

2,780万円

-

4LDK(98.82㎡)

お気軽にお問い合わせください

無料お問い合わせ

湘南人不動産

0466-47-4990

09:00~18:00

(休:火曜日・水曜日)