平塚市南金目第18 Ⅰ期 新築一戸建て 全7棟

2,280万円~2,380万円

神奈川県平塚市南金目

小田急小田原線「東海大学前」駅徒歩39分

東海道本線「平塚」駅バス29分神奈川中央交通「南金目」停歩2分

小田急小田原線「鶴巻温泉」駅バス10分神奈川中央交通「堀町(神奈川県)」停歩9分

価格
2,280万円~2,380万円
間取り/建物面積
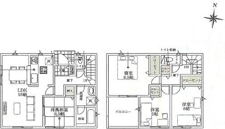
4LDK/93.15㎡~98.82㎡
所在地
神奈川県平塚市南金目
築年
2025年11月(予定)
駐車
交通

小田急小田原線東海大学前」駅 徒歩39分

東海道本線平塚」駅 バス29分 神奈川中央交通「南金目」 停歩2分

小田急小田原線鶴巻温泉」駅 バス10分 神奈川中央交通「堀町(神奈川県)」 停歩9分

平塚市南金目第18 Ⅰ期 新築一戸建て 全7棟の基本情報

物件名
平塚市南金目第18 Ⅰ期 新築一戸建て 全7棟
価格
2,280万円~2,380万円
建物面積
93.15㎡~98.82㎡
土地面積
35.78坪~39.55坪(118.30㎡~130.76㎡)
築年月
2025年11月(予定)
総戸数
7戸
所在地
神奈川県平塚市南金目
交通

小田急小田原線東海大学前」駅 徒歩39分

東海道本線平塚」駅 バス29分 神奈川中央交通「南金目」 停歩2分

小田急小田原線鶴巻温泉」駅 バス10分 神奈川中央交通「堀町(神奈川県)」 停歩9分

平塚市南金目第18 Ⅰ期 新築一戸建て 全7棟の詳細情報

設備条件
  • 閑静な住宅地
  • 耐震構造
  • 防犯カメラ
設備(その他)
    -
駐車場/月額
有/ 車種による
土地権利
所有権
国土法届出
不要
用途地域
第一種住居
取引態様
仲介
引渡し
相談
備考
こだわりポイント満載の平塚市南金目第18 Ⅰ期 新築一戸建て 全7棟。徒歩3分の場所に平塚市立金目小学校があります。近年関心が高まっているエコを意識した省エネ対策がなされています。こちらの物件は、制震構造で安全性にとても優れています。不動産探しで重視しているポイントを、当社にお聞かせください。当社は数多くの不動産情報を取り扱っております。ぜひ当社の利用をご検討ください。

平塚市南金目第18 Ⅰ期 新築一戸建て 全7棟のコメント(おすすめポイント)

「平塚市南金目第18 Ⅰ期 新築一戸建て 全7棟」のここがイチオシ。徒歩4分の距離に平塚市立金目中学校があるのも魅力。制震で構造がしっかりしてて、建物重量を支えも頑丈です。一生に一度のマイホーム探しは、ぜひ新築戸建てで。不動産の購入は大きなお買い物です。そこで失敗しないためにも、不動産のプロである当社スタッフまでお気軽にお問い合わせください。

平塚市南金目第18 Ⅰ期 新築一戸建て 全7棟で募集中の物件

  1. 11号棟

    28.17坪 (93.15㎡)

    2,280万円(57.65万円/坪)

  2. 9号棟

    29.89坪 (98.82㎡)

    2,380万円(66.52万円/坪)

近隣の物件

  1. 平塚市横内

    4LDK (119.05㎡)

    2,390万円

  2. 平塚市岡崎

    4LDK (95.98㎡)

    2,680万円

  3. 平塚市高根2丁目

    4LDK (96.59㎡)

    2,099万円

  4. 平塚市千石河岸

    5DK (121.45㎡)

    3,280万円

よく見られている物件

  1. 鎌倉市材木座5丁目

    2LDK (86.44㎡)

    8,580万円

  2. 鎌倉市大町6丁目

    4DK (66.09㎡)

    1,980万円

  3. 鎌倉市七里ガ浜2丁目

    3LDK (80.72㎡)

    6,099万円

  4. 茅ヶ崎市今宿

    3LDK (85.28㎡)

    3,080万円

平塚市南金目第18 Ⅰ期 新築一戸建て 全7棟

お気軽にお問い合わせください

無料お問い合わせ

湘南人不動産

0466-47-4990

09:00~18:00

(休:火曜日・水曜日)