平塚市立野町第4 新築戸建全3棟  2号棟

4,280万円

神奈川県平塚市立野町

東海道本線「平塚」駅徒歩22分

相模線「寒川」駅バス23分神奈川中央交通「崇善小学校前」停歩12分

価格
4,280万円
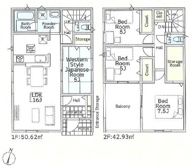
間取り
4LDK
土地面積
121.97㎡
所在地
神奈川県平塚市立野町
交通

東海道本線平塚」駅 徒歩22分

相模線寒川」駅 バス23分 神奈川中央交通「崇善小学校前」 停歩12分

建物面積
95.98㎡
築年月
2026年1月(予定)

物件の特徴

  • バストイレ別

  • TVモニタ付きインターホン

  • カウンターキッチン

  • 浴室乾燥機

セールスポイント

「平塚市立野町第4 新築戸建全3棟 」のここがイチオシ。家から316mのところに平塚富士見郵便局があります。家から平塚共済病院まで429mです。当社で不動産を探しませんか。人生に何度とない不動産購入だからこそ、当社にお任せください。数多くの不動産情報を取り扱っております。

ポイント

南面バルコニー 陽当り良好 制震構造 玄関ポーチ ファミリー向け

担当者のコメント

児玉 (こだま)

ぜひ一度見ていただきたい、「平塚市立野町第4 新築戸建全3棟 」です。建物面積が95.98㎡でスペースが十分のファミリーにもおすすめの物件です。住み心地もいい4,280万円の物件はこちらです。日中心地よく過ごせる、南向きの物件はいかがでしょうか。帰りたくなるお住まいを当社で見つけませんか。お住まいが心地よいものであれば、心にゆとりが生まれます。大切なお住まい探し、当社に任せていただけませんか。

基本情報

販売戸数
3戸
総戸数
3戸
間取り / 詳細
4LDK
LDK 16.0帖 1室/和室 5.0帖 1室/洋室 7.5帖 1室/洋室 6.5帖 1室/洋室 5.0帖 1室
+納戸
向き
建物面積(坪数)
95.98㎡(29.03坪)
土地面積(坪数)
121.97㎡(36.89坪)
建ぺい率 /
容積率
80%/200%
築年月
2026年1月(予定)
駐車場 /
月額料金
有  ※駐車スペースは車種によります。
土地権利
所有権
土地
(敷金 / 保証金)
- / -
建物構造
木造 / 2階建
傾斜地部分面積
-
路地状敷地
-
私道負担面積
79.41㎡
私道負担割合 : 1/4
セットバック
高圧線下面積
-
施工会社
-
用途地域
第一種住居
地目 / 地勢
宅地 / -
接道状況
一方(南 私道 4.2m)
国土法届出要否
不要
都市計画
市街化区域
総区画数 /
販売区画数
3区画/3区画
現況
未完成
その他
法令上の制限
文化財保護法/景観法/宅地造成及び特定盛土等規制法/高度地区/準防火地域/宅地造成等工事規制区域
取引態様
仲介
引渡し
相談
取引条件の
有効期限
2025年12月26日

設備条件

設備条件
  • 陽当り良好 / 閑静な住宅地 / 新婚さん向け / ファミリー向け / 海が近い / フローリング / 都市ガス / 公営水道 / 公共下水 / 電気有 / 耐震構造 / ガスコンロ / コンロ2口以上 / システムキッチン / カウンターキッチン / コンロ3口 / バス・トイレ別 / 浴室乾燥機 / 温水洗浄便座 / トイレ2ヶ所 / 床下収納 / 収納豊富 / TVモニタ付インターホン / 複層ガラス / ディンプルキー
設備(その他)
    -

その他

物件番号
98757632
管理コード
-
建築確認番号
第KBI-SGM25-10-3646号
情報更新日
2025年12月12日
次回更新予定日
2025年12月26日
取扱会社
  • 湘南人不動産
  • 神奈川県藤沢市片瀬海岸1丁目12−4 ヴィルヌーブ片瀬江の島 1F
  • TEL:0466-47-4990
  • 国土交通大臣 (1) 第10616号
備考
こだわりで選びたい方におすすめ。平塚市エリアで住まいをお探しなら「平塚市立野町第4 新築戸建全3棟 」。平塚共済病院まで429mです。顔が見える安心のTVインターホン付きです。実りある充実した生活が出来るお住まいを探すなら、当社にお任せください。住まいが変われば、人生が変わります。ぜひご検討ください。

平塚市立野町第4 新築戸建全3棟 の他の物件

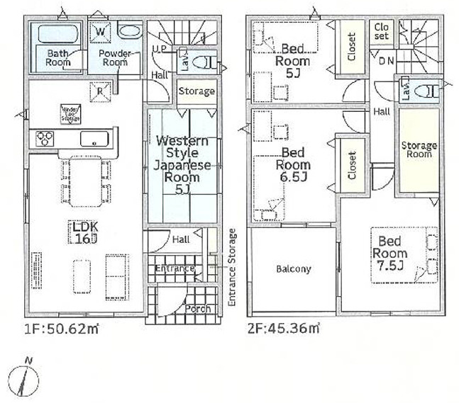
  1. 1号棟

    4LDK (99.22㎡)

    4,480万円(149.28万円/坪)

  2. 3号棟

    4LDK (93.55㎡)

    4,180万円(147.76万円/坪)

周辺施設

  • セブンイレブン 平塚豊原店の画像

    コンビニエンスストア

    セブンイレブン 平塚豊原店

    281m(4分)

  • 平塚警察署 追分交番の画像

    警察

    平塚警察署 追分交番

    301m(4分)

  • 平塚富士見郵便局の画像

    郵便局

    平塚富士見郵便局

    316m(4分)

  • 小林動物病院の画像

    動物病院

    小林動物病院

    344m(5分)

  • 平塚共済病院の画像

    総合病院

    平塚共済病院

    429m(6分)

  • 業務スーパー 平塚店の画像

    スーパー

    業務スーパー 平塚店

    614m(8分)

  • スギ薬局 平塚店の画像

    ドラッグストア

    スギ薬局 平塚店

    631m(8分)

  • 浅野歯科医院の画像

    歯科

    浅野歯科医院

    678m(9分)

  • 保育室 きしゃポッポの画像

    保育園

    保育室 きしゃポッポ

    728m(10分)

  • 平塚二葉幼稚園の画像

    幼稚園

    平塚二葉幼稚園

    779m(10分)

  • 富士の湯の画像

    銭湯

    富士の湯

    793m(10分)

  • つるみね幼稚園の画像

    幼稚園

    つるみね幼稚園

    920m(12分)

  • 八幡山公園の画像

    公園

    八幡山公園

    921m(12分)

  • 平塚八幡宮の画像

    寺院・神社

    平塚八幡宮

    985m(13分)

  • オーケー平塚店の画像

    スーパー

    オーケー平塚店

    1023m(13分)

  • 平塚市立江陽中学校の画像

    中学校

    平塚市立江陽中学校

    1028m(13分)

  • かとう腎・泌尿器科クリニックの画像

    内科

    かとう腎・泌尿器科クリニック

    1090m(14分)

  • クリエイトSD(エス・ディー) 平塚四丁目店の画像

    ドラッグストア

    クリエイトSD(エス・ディー) 平塚四丁目店

    1093m(14分)

  • あおぞら湘南クリニックの画像

    総合病院

    あおぞら湘南クリニック

    1197m(15分)

  • 横田書店の画像

    書店

    横田書店

    1244m(16分)

支払いシミュレーション

月々の支払額
9.6
購入希望物件価格
万円
頭金
万円
金利
%
返済額(ボーナス1回分)
万円
返済期間

※ボーナスは自動で年2回分で計算されます。

近隣の物件

  1. 平塚市南豊田第5 新築一戸建て 全2棟

    平塚市南豊田

    4LDK (97.60㎡)

    2,880万円

  2. 平塚市中原2丁目 戸建

    平塚市中原2丁目

    4LDK (100.84㎡)

    2,560万円

  3. 平塚市田村1丁目  新築戸建 

    平塚市田村1丁目

    4LDK (94.76㎡)

    3,280万円

  4. 平塚市出縄  全10棟 東栄港南台 新築戸建

    平塚市出縄

    2LDK (106.01㎡)

    3,480万円

平塚市立野町第4 新築戸建全3棟 

平塚市立野町第4 新築戸建全3棟 

4,280万円

-

4LDK(95.98㎡)

お気軽にお問い合わせください

無料お問い合わせ

湘南人不動産

0466-47-4990

09:00~18:00

(休:火曜日・水曜日)