茅ヶ崎市東海岸南4丁目の新築一戸建

6,980万円

神奈川県茅ヶ崎市東海岸南4丁目

東海道本線「茅ケ崎」駅徒歩16分

東海道本線「辻堂」駅バス15分神奈川中央交通「東海岸二丁目」停歩8分

価格
6,980万円
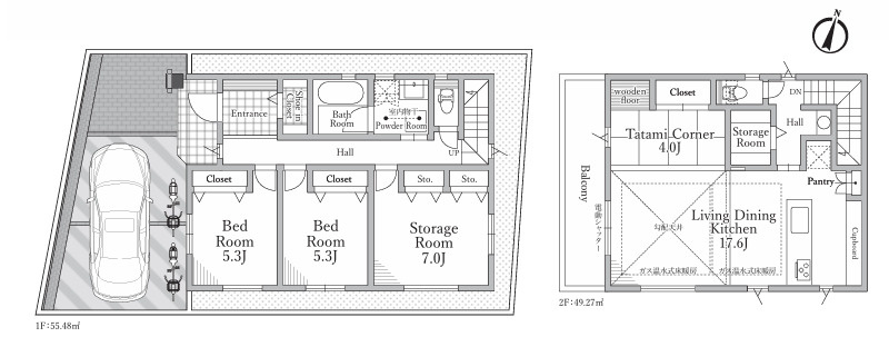
間取り/建物面積
2LDK/104.75㎡
所在地
神奈川県茅ヶ崎市東海岸南4丁目
築年
2025年11月(新築)
駐車
交通

東海道本線茅ケ崎」駅 徒歩16分

東海道本線辻堂」駅 バス15分 神奈川中央交通「東海岸二丁目」 停歩8分

茅ヶ崎市東海岸南4丁目の新築一戸建の基本情報

物件名
茅ヶ崎市東海岸南4丁目の新築一戸建
価格
6,980万円
建物面積
104.75㎡
土地面積
32.09坪(106.11㎡)
築年月
2025年11月(新築)
総戸数
-
所在地
神奈川県茅ヶ崎市東海岸南4丁目
交通

東海道本線茅ケ崎」駅 徒歩16分

東海道本線辻堂」駅 バス15分 神奈川中央交通「東海岸二丁目」 停歩8分

茅ヶ崎市東海岸南4丁目の新築一戸建の詳細情報

設備条件
  • 閑静な住宅地
  • 建設住宅性能評価書付
  • 海が近い
  • 耐震構造
設備(その他)
    -
駐車場/月額
有/ 車種による
土地権利
所有権
国土法届出
不要
用途地域
第一種低層住居専用
取引態様
仲介
引渡し
相談
備考
茅ヶ崎市東海岸南4丁目 新築戸建:東海道本線茅ケ崎駅にも近くて便利。徒歩5分の場所に茅ヶ崎市立東海岸小学校があります。この物件は内観も綺麗で設備も充実した、令和7年11月築となっています。築2年以内の築浅物件です。不動産の購入は、人生の中でも大きなお買い物です。当社スタッフが不動産購入をしっかりサポート致しますので、どうぞ安心してお任せ下さい。

茅ヶ崎市東海岸南4丁目の新築一戸建のコメント(おすすめポイント)

ぜひ一度見ていただきたい、「茅ヶ崎市東海岸南4丁目 新築戸建」です。氷室椿庭園まで26mです。こちらは省エネ対策にもご利用頂けます。気密性の高い2×4工法となっており防音効果も高くなっています。不動産の購入は、人生の中でも大きなターニングポイントです。後悔の無いよう当社スタッフが全力でサポートするので、お気軽にお問合せ下さい。

茅ヶ崎市東海岸南4丁目の新築一戸建で募集中の物件

  1. 2号棟

    31.68坪 (104.75㎡)

    6,980万円(220.33万円/坪)

周辺施設

  • 氷室椿庭園の画像

    公園

    氷室椿庭園

    26m(1分)

  • 茅ヶ崎市立東海岸小学校の画像

    小学校

    茅ヶ崎市立東海岸小学校

    387m(5分)

  • ローソン 茅ヶ崎東海岸南店の画像

    コンビニエンスストア

    ローソン 茅ヶ崎東海岸南店

    622m(8分)

  • セブンイレブン 茅ヶ崎東海岸の画像

    コンビニエンスストア

    セブンイレブン 茅ヶ崎東海岸

    624m(8分)

  • 茅ヶ崎市立第一中学校の画像

    中学校

    茅ヶ崎市立第一中学校

    649m(9分)

  • パーマ屋ボスの画像

    美容室

    パーマ屋ボス

    718m(9分)

  • 茅ヶ崎警察署 東海岸駐在所の画像

    警察

    茅ヶ崎警察署 東海岸駐在所

    718m(9分)

  • 茅ヶ崎公園の画像

    公園

    茅ヶ崎公園

    722m(10分)

  • ローソン 茅ヶ崎雄三通店の画像

    コンビニエンスストア

    ローソン 茅ヶ崎雄三通店

    748m(10分)

  • クリエイトSD(エス・ディー) 茅ケ崎雄三通り店の画像

    ドラッグストア

    クリエイトSD(エス・ディー) 茅ケ崎雄三通り店

    855m(11分)

  • 茅ヶ崎海岸郵便局の画像

    郵便局

    茅ヶ崎海岸郵便局

    904m(12分)

  • SUPER MARKET Tamaya(スーパーマーケットたまや) 幸町店の画像

    スーパー

    SUPER MARKET Tamaya(スーパーマーケットたまや) 幸町店

    1016m(13分)

  • 茅ヶ崎市立中海岸保育園の画像

    保育園

    茅ヶ崎市立中海岸保育園

    1235m(16分)

  • 村田歯科医院の画像

    歯科

    村田歯科医院

    1428m(18分)

近隣の物件

  1. 茅ヶ崎市浜須賀

    4LDK (100.01㎡)

    3,000万円

  2. 茅ヶ崎市浜竹4丁目

    3LDK (117.79㎡)

    9,990万円

  3. 茅ヶ崎市浜須賀

    1SLDK (83.74㎡)

    5,190万円

  4. 茅ヶ崎市浜竹1丁目

    2LDK (88.92㎡)

    4,580万円

よく見られている物件

  1. 鎌倉市材木座5丁目

    2LDK (86.44㎡)

    8,580万円

  2. 鎌倉市大町6丁目

    4DK (66.09㎡)

    1,780万円

  3. -

    4LDK (97.40㎡)

    2,490万円

  4. 鎌倉市七里ガ浜2丁目

    3LDK (80.72㎡)

    5,999万円

茅ヶ崎市東海岸南4丁目の新築一戸建

お気軽にお問い合わせください

無料お問い合わせ

湘南人不動産

0466-47-4990

09:00~18:00

(休:火曜日・水曜日)