寒川町岡田7丁目2826番27新築戸建 1号棟

3,150万円

神奈川県高座郡寒川町岡田7丁目9-3

相模線「寒川」駅徒歩19分

価格
3,150万円
間取り
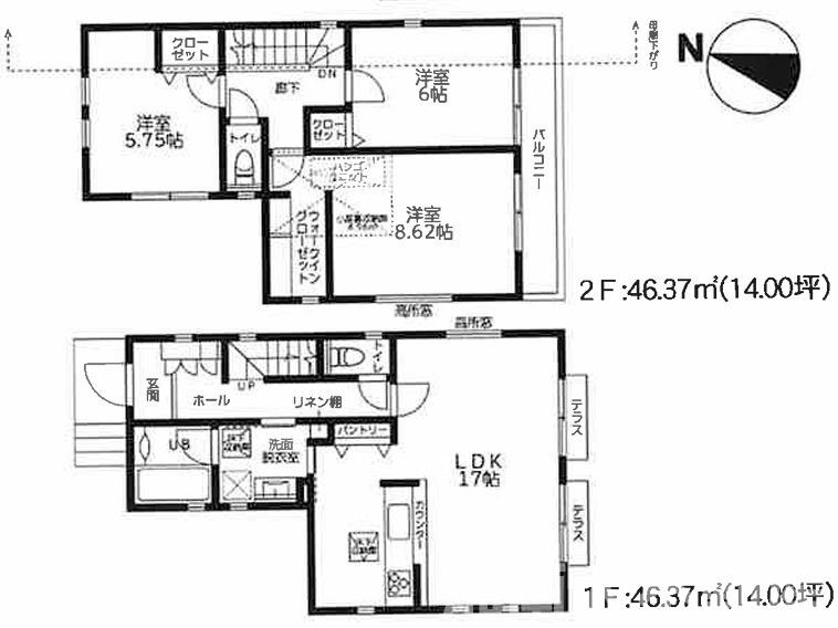
3LDK
土地面積
92.83㎡
所在地
神奈川県高座郡寒川町岡田7丁目9-3
交通

相模線寒川」駅 徒歩19分

建物面積
92.74㎡
築年月
2025年3月(新築)

物件の特徴

  • バストイレ別

  • TVモニタ付きインターホン

  • カウンターキッチン

  • 独立洗面台

  • 浴室乾燥機

セールスポイント

「寒川町岡田7丁目2826番27新築戸建」のここがイチオシ。新婚さんの新しい暮らしを応援します。家族で暮らすのにお勧めなのは3LDKの物件、伸び伸びと生活を送りましょう。周辺環境も良好な、令和7年3月築の住みよい物件となっております。あなたが求める暮らしを実現させましょう。こだわりぬいて住まいを選べば、快適な生活が待っています。ぜひご検討くださいませ。

ポイント

フローリング テラス 複層ガラス トイレ2ヶ所 ベタ基礎

担当者のコメント

清水 (しみず)

建物面積は92.74㎡です。新築ならではの「新しさ」がとても魅力です。こちらの間取りは新婚生活を始めた方々にオススメです。こちらの新築戸建てで新たな生活のスタートをきりませんか。高座郡寒川町内の不動産情報をより求めるのであれば、お気軽に当社までご連絡ください。お問い合わせは、お電話またはメールから承っております。

基本情報

販売戸数
-
総戸数
-
間取り / 詳細
3LDK
向き
-
建物面積(坪数)
92.74㎡(28.05坪)
土地面積(坪数)
92.83㎡(28.08坪)
建ぺい率 /
容積率
-/-
築年月
2025年3月(新築)
土地権利
所有権
土地
(敷金 / 保証金)
- / -
建物構造
木造 / 2階建
傾斜地部分面積
-
路地状敷地
-
私道負担面積
-
セットバック
-
高圧線下面積
-
施工会社
-
用途地域
-
地目 / 地勢
宅地 / -
接道状況
-
国土法届出要否
不要
都市計画
-
総区画数 /
販売区画数
-/-
現況
完成済み
その他
法令上の制限
-
取引態様
仲介
引渡し
即時
取引条件の
有効期限
2025年11月19日

設備条件

設備条件
  • 閑静な住宅地 / カードキー / 新婚さん向け / ファミリー向け / フローリング / バルコニー / 都市ガス / 公営水道 / 公共下水 / 食器洗い乾燥機 / システムキッチン / カウンターキッチン / バス・トイレ別 / 浴室乾燥機 / 温水洗浄便座 / トイレ2ヶ所 / 独立洗面台 / 床下収納 / ウォークインクロゼット / 屋根裏収納 / TVモニタ付インターホン / 複層ガラス
設備(その他)
    -

その他

物件番号
94310507
管理コード
-
建築確認番号
-
情報更新日
2025年11月05日
次回更新予定日
2025年11月19日
備考
こだわりで選びたい方におすすめ。高座郡寒川町エリアで住まいをお探しなら「寒川町岡田7丁目2826番27新築戸建」。小学校が十分通学できる範囲にあります。寒川町立小谷小学校が徒歩15分です。当社で不動産を探しませんか。人生に何度とない不動産購入だからこそ、当社にお任せください。数多くの不動産情報を取り扱っております(*´ω`*)

周辺施設

  • クリエイトSD(エス・ディー) 寒川小谷店の画像

    ドラッグストア

    クリエイトSD(エス・ディー) 寒川小谷店

    250m(4分)

  • 寒川町立寒川小学校の画像

    小学校

    寒川町立寒川小学校

    1021m(13分)

  • 寒川町立小谷小学校の画像

    小学校

    寒川町立小谷小学校

    1176m(15分)

  • 寒川町立旭が丘中学校の画像

    中学校

    寒川町立旭が丘中学校

    1879m(24分)

  • 寒川郵便局の画像

    郵便局

    寒川郵便局

    1940m(25分)

支払いシミュレーション

月々の支払額
9.6
購入希望物件価格
万円
頭金
万円
金利
%
返済額(ボーナス1回分)
万円
返済期間

※ボーナスは自動で年2回分で計算されます。

近隣の物件

  1. 寒川町小谷1丁目戸建て

    高座郡寒川町小谷1丁目

    4LDK (100.19㎡)

    3,380万円

  2. 寒川町一之宮2丁目2303番戸建て

    高座郡寒川町一之宮2丁目

    6LDK (138.70㎡)

    3,350万円

  3. 寒川町小谷1丁目新築戸建

    高座郡寒川町小谷1丁目

    3LDK (99.36㎡)

    3,280万円

  4. 高座郡寒川町一之宮3丁目 戸建

    高座郡寒川町一之宮3丁目

    3SLDK (100.19㎡)

    2,499万円

寒川町岡田7丁目2826番27新築戸建

寒川町岡田7丁目2826番27新築戸建

3,150万円

-

3LDK(92.74㎡)

お気軽にお問い合わせください

無料お問い合わせ

湘南人不動産

0466-47-4990

09:00~18:00

(休:火曜日・水曜日)