平塚市南豊田 第5

2,880万円

神奈川県平塚市南豊田

東海道本線「平塚」駅バス17分神奈川中央交通「東橋(平塚市)」停歩2分

小田急小田原線「伊勢原」駅バス17分神奈川中央交通「東橋(平塚市)」停歩3分

価格
2,880万円
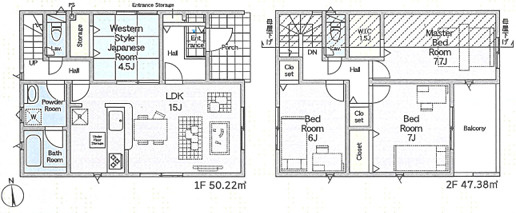
間取り/建物面積
4LDK/97.60㎡
所在地
神奈川県平塚市南豊田
築年
2026年1月(新築)
駐車
交通

東海道本線平塚」駅 バス17分 神奈川中央交通「東橋(平塚市)」 停歩2分

小田急小田原線伊勢原」駅 バス17分 神奈川中央交通「東橋(平塚市)」 停歩3分

平塚市南豊田 第5の基本情報

物件名
平塚市南豊田 第5
価格
2,880万円
建物面積
97.60㎡
土地面積
37.3坪(123.32㎡)
築年月
2026年1月(新築)
総戸数
-
所在地
神奈川県平塚市南豊田
交通

東海道本線平塚」駅 バス17分 神奈川中央交通「東橋(平塚市)」 停歩2分

小田急小田原線伊勢原」駅 バス17分 神奈川中央交通「東橋(平塚市)」 停歩3分

平塚市南豊田 第5の詳細情報

設備条件
  • 閑静な住宅地
  • 耐震構造
設備(その他)
    -
駐車場/月額
有/ (並列駐車・車種によります)
土地権利
所有権
国土法届出
不要
用途地域
第一種中高層住居専用
取引態様
仲介
引渡し
相談
備考
こだわりポイント満載の平塚市南豊田 第5。快適な室内環境のある、令和8年1月築の物件となります。新築にこだわりをもつ方には、こちらの新築物件はいかがでしょうか。地球にやさしい省エネ対策の物件です。平塚市には多種多様な一戸建てがございますので、マイホームの購入をお考えなら、ぜひ当社までご連絡ください。お待ちしております。

平塚市南豊田 第5のコメント(おすすめポイント)

「平塚市南豊田 第5」のここがイチオシ。制震で構造がしっかりしてて、建物重量を支えも頑丈です。初めてのマイホームに新築戸建てはいかがでしょうか。2026年1月築の物件です。一戸建ての情報だけではなく、地域環境も併せて知りたいという方は、当社までご連絡ください。平塚市にある東海道本線平塚周辺の地域環境を知り尽くしております。

平塚市南豊田 第5で募集中の物件

  1. 29.52坪 (97.60㎡)

    2,880万円(97.56万円/坪)

周辺施設

  • ファミリーマート 平塚大縄店の画像

    コンビニエンスストア

    ファミリーマート 平塚大縄店

    1051m(14分)

  • 平塚市役所 大野子どもの家の画像

    市役所・区役所

    平塚市役所 大野子どもの家

    1239m(16分)

  • セブンイレブン 平塚中原北店の画像

    コンビニエンスストア

    セブンイレブン 平塚中原北店

    1352m(17分)

  • ユーコープ 中原店の画像

    スーパー

    ユーコープ 中原店

    1373m(18分)

  • エスパティオ 中原店の画像

    スーパー

    エスパティオ 中原店

    1419m(18分)

  • 松が丘調剤薬局の画像

    ドラッグストア

    松が丘調剤薬局

    1618m(21分)

  • 梶原医院の画像

    内科

    梶原医院

    1652m(21分)

  • 春藤歯科医院の画像

    歯科

    春藤歯科医院

    1709m(22分)

  • クリエイトSD(エス・ディー) 平塚中原店の画像

    ドラッグストア

    クリエイトSD(エス・ディー) 平塚中原店

    1720m(22分)

近隣の物件

  1. 平塚市長持

    4LDK (98.69㎡)

    3,390万円

  2. 平塚市寺田縄

    4LDK (101.43㎡)

    2,980万円

  3. 平塚市幸町

    4LDK (105.16㎡)

    5,399万円

  4. 平塚市四之宮7丁目

    4LDK (101.85㎡)

    3,390万円

平塚市南豊田 第5

お気軽にお問い合わせください

無料お問い合わせ

湘南人不動産

0466-47-4990

09:00~18:00

(休:火曜日・水曜日)