平塚市南豊田第5 新築一戸建て 全2棟 1号棟

2,880万円

神奈川県平塚市南豊田

東海道本線「平塚」駅バス17分神奈川中央交通「東橋(平塚市)」停歩2分

小田急小田原線「伊勢原」駅バス17分神奈川中央交通「東橋(平塚市)」停歩3分

価格
2,880万円
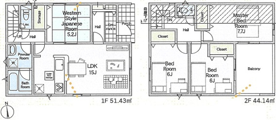
間取り
4LDK
土地面積
123.32㎡
所在地
神奈川県平塚市南豊田
交通

東海道本線平塚」駅 バス17分 神奈川中央交通「東橋(平塚市)」 停歩2分

小田急小田原線伊勢原」駅 バス17分 神奈川中央交通「東橋(平塚市)」 停歩3分

建物面積
97.60㎡
築年月
2025年12月(予定)

物件の特徴

  • バストイレ別

  • 室内洗濯機置場

  • TVモニタ付きインターホン

  • カウンターキッチン

  • 浴室乾燥機

セールスポイント

新生活を失敗せず、スタートさせたいならこちらの「平塚市南豊田第5 新築一戸建て 全2棟」はいかがでしょうか。新婚さんの新しい暮らしを応援します。浴室乾燥機付きの物件なので、浴室乾燥機をつけて湿気を除去すればカビの発生を予防できます。平塚市を中心に不動産情報を扱う当社でなら、きっと東海道本線平塚周辺の住まい探しにも役立つことでしょう。まずはご希望条件をお聞かせ下さい。

ポイント

クロゼット2ヶ所 築2年以内 複層ガラス 省エネルギー対策 人感照明センサー

担当者のコメント

児玉 (こだま)

97.6㎡の建物面積がある物件です。広々としたリビングに充実設備のキッチンを備えた4LDK。複層ガラスなので暑い夏のエアコン代も節約することができます。2,880万円の物件です。お住まいにいかがでしょうか。不動産の購入は人生の中でも大きなお買い物だと言われています。そんな大きなお買い物で失敗しないためにも、購入をお考えの際は不動産のプロである当社スタッフにお任せください。

基本情報

販売戸数
2戸
総戸数
2戸
間取り / 詳細
4LDK
向き
-
建物面積(坪数)
97.60㎡(29.52坪)
土地面積(坪数)
123.32㎡(37.30坪)
建ぺい率 /
容積率
60%/200%
築年月
2025年12月(予定)
駐車場 /
月額料金
有  車種による
土地権利
所有権
土地
(敷金 / 保証金)
- / -
建物構造
木造 / 2階建
傾斜地部分面積
-
路地状敷地
-
私道負担面積
70.65㎡
私道負担割合 : 1/3
セットバック
高圧線下面積
-
施工会社
-
用途地域
第一種中高層住居専用
地目 / 地勢
宅地 / -
接道状況
一方(北 私道 4.0m)
国土法届出要否
不要
都市計画
市街化区域
総区画数 /
販売区画数
2区画/2区画
現況
未完成
その他
法令上の制限
河川法/高度地区/準防火地域
取引態様
仲介
引渡し
相談
取引条件の
有効期限
2026年01月22日

設備条件

設備条件
  • 陽当り良好 / 閑静な住宅地 / 新婚さん向け / ファミリー向け / 室内洗濯機置場 / フローリング / バルコニー / プロパンガス / 公営水道 / 公共下水 / 24時間換気システム / 電気有 / 駐車2台可 / 耐震構造 / システムキッチン / カウンターキッチン / バス・トイレ別 / 浴室乾燥機 / 温水洗浄便座 / トイレ2ヶ所 / 床下収納 / ウォークインクロゼット / 収納豊富 / TVモニタ付インターホン / 複層ガラス / ディンプルキー
設備(その他)
    -

その他

物件番号
98223413
管理コード
-
建築確認番号
第KBI-SGM25-10-2379号
情報更新日
2026年01月08日
次回更新予定日
2026年01月22日
取扱会社
  • 湘南人不動産
  • 神奈川県藤沢市片瀬海岸1丁目12−4 ヴィルヌーブ片瀬江の島 1F
  • TEL:0466-47-4990
  • 国土交通大臣 (1) 第10616号
備考
良い空気にいつでも入れ替えられるよう、洗面所に窓をつけました。4LDKの物件で快適な日々を過ごしましょう。こちらは省エネ対策にもご利用頂けます。来客が一目でわかるTVインターホン付き。当社では、平塚市にある不動産情報を数多くご用意しております。お引っ越しをお考えの方は、この機会にぜひご連絡ください。

平塚市南豊田第5 新築一戸建て 全2棟の他の物件

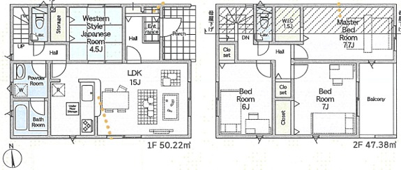
  1. 2号棟

    4LDK (95.57㎡)

    3,080万円(106.57万円/坪)

周辺施設

  • ファミリーマート 平塚大縄店の画像

    コンビニエンスストア

    ファミリーマート 平塚大縄店

    1051m(14分)

  • 平塚市役所 大野子どもの家の画像

    市役所・区役所

    平塚市役所 大野子どもの家

    1239m(16分)

  • セブンイレブン 平塚中原北店の画像

    コンビニエンスストア

    セブンイレブン 平塚中原北店

    1352m(17分)

  • ユーコープ 中原店の画像

    スーパー

    ユーコープ 中原店

    1373m(18分)

  • エスパティオ 中原店の画像

    スーパー

    エスパティオ 中原店

    1419m(18分)

  • 松が丘調剤薬局の画像

    ドラッグストア

    松が丘調剤薬局

    1618m(21分)

  • 梶原医院の画像

    内科

    梶原医院

    1652m(21分)

  • 春藤歯科医院の画像

    歯科

    春藤歯科医院

    1709m(22分)

  • クリエイトSD(エス・ディー) 平塚中原店の画像

    ドラッグストア

    クリエイトSD(エス・ディー) 平塚中原店

    1720m(22分)

支払いシミュレーション

月々の支払額
9.6
購入希望物件価格
万円
頭金
万円
金利
%
返済額(ボーナス1回分)
万円
返済期間

※ボーナスは自動で年2回分で計算されます。

近隣の物件

  1. 平塚市豊田本郷 戸建

    平塚市豊田本郷

    4DK (83.63㎡)

    980万円

  2. 平塚市東中原 築浅戸建 

    平塚市東中原2丁目

    3LDK (95.85㎡)

    3,490万円

  3. 平塚市虹ヶ浜 未入居戸建

    平塚市虹ケ浜

    4LDK (91.50㎡)

    4,080万円

  4. 平塚市南金目 築浅中古戸建 

    平塚市南金目

    4LDK (99.99㎡)

    3,380万円

平塚市南豊田第5 新築一戸建て 全2棟

平塚市南豊田第5 新築一戸建て 全2棟

2,880万円

-

4LDK(97.60㎡)

お気軽にお問い合わせください

無料お問い合わせ

湘南人不動産

0466-47-4990

09:00~18:00

(休:火曜日・水曜日)