平塚市南豊田第5 新築一戸建て 全2棟

2,880万円

神奈川県平塚市南豊田

東海道本線「平塚」駅バス17分神奈川中央交通「東橋(平塚市)」停歩2分

小田急小田原線「伊勢原」駅バス17分神奈川中央交通「東橋(平塚市)」停歩3分

価格
2,880万円
間取り/建物面積
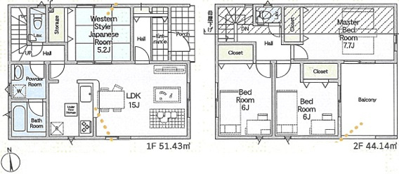
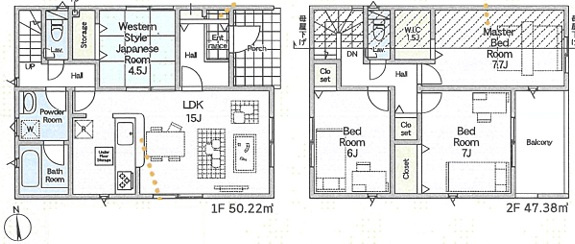
4LDK/97.60㎡
所在地
神奈川県平塚市南豊田
築年
2025年12月(予定)
駐車
交通

東海道本線平塚」駅 バス17分 神奈川中央交通「東橋(平塚市)」 停歩2分

小田急小田原線伊勢原」駅 バス17分 神奈川中央交通「東橋(平塚市)」 停歩3分

平塚市南豊田第5 新築一戸建て 全2棟の基本情報

物件名
平塚市南豊田第5 新築一戸建て 全2棟
価格
2,880万円
建物面積
97.60㎡
土地面積
37.3坪(123.32㎡)
築年月
2025年12月(予定)
総戸数
2戸
所在地
神奈川県平塚市南豊田
交通

東海道本線平塚」駅 バス17分 神奈川中央交通「東橋(平塚市)」 停歩2分

小田急小田原線伊勢原」駅 バス17分 神奈川中央交通「東橋(平塚市)」 停歩3分

平塚市南豊田第5 新築一戸建て 全2棟の詳細情報

設備条件
  • 閑静な住宅地
  • 駐車2台可
  • 耐震構造
設備(その他)
    -
駐車場/月額
有/ 車種による
土地権利
所有権
国土法届出
不要
用途地域
第一種中高層住居専用
取引態様
仲介
引渡し
相談
備考
ぜひ一度見ていただきたい、「平塚市南豊田第5 新築一戸建て 全2棟」です。劣化対策をしていますので、見た目だけでなく構造からしっかりとした造りです。一生に一度のマイホーム探しは、ぜひ新築戸建てで。制震構造は、様々な技術開発が行われていて、日々進歩し続けています。平塚市についてお問い合わせいただければ、地域情報に詳しい当社スタッフが対応いたします。もちろん不動産についてもご連絡くださいませ。

平塚市南豊田第5 新築一戸建て 全2棟のコメント(おすすめポイント)

多くの方からこだわり条件でいただく新築戸建ての物件です。技術が進歩してきている制震構造で、地震を防いでくれます。劣化対策をしてますので耐久性の高い建材を使っています。コチラの物件は耐風構造を採用しており、風害時も心配要らずです。不動産購入で失敗しないように、豊富な経験と知識を持つ当社がしっかりとサポートを行います。ご希望の条件がございましたら、当社スタッフにお聞かせください。

平塚市南豊田第5 新築一戸建て 全2棟で募集中の物件

  1. 1号棟

    29.52坪 (97.60㎡)

    2,880万円(97.56万円/坪)

周辺施設

  • ファミリーマート 平塚大縄店の画像

    コンビニエンスストア

    ファミリーマート 平塚大縄店

    1051m(14分)

  • 平塚市役所 大野子どもの家の画像

    市役所・区役所

    平塚市役所 大野子どもの家

    1239m(16分)

  • セブンイレブン 平塚中原北店の画像

    コンビニエンスストア

    セブンイレブン 平塚中原北店

    1352m(17分)

  • ユーコープ 中原店の画像

    スーパー

    ユーコープ 中原店

    1373m(18分)

  • エスパティオ 中原店の画像

    スーパー

    エスパティオ 中原店

    1419m(18分)

  • 松が丘調剤薬局の画像

    ドラッグストア

    松が丘調剤薬局

    1618m(21分)

  • 梶原医院の画像

    内科

    梶原医院

    1652m(21分)

  • 春藤歯科医院の画像

    歯科

    春藤歯科医院

    1709m(22分)

  • クリエイトSD(エス・ディー) 平塚中原店の画像

    ドラッグストア

    クリエイトSD(エス・ディー) 平塚中原店

    1720m(22分)

近隣の物件

  1. 平塚市幸町

    4LDK (105.16㎡)

    5,399万円

  2. 平塚市四之宮7丁目

    4LDK (101.85㎡)

    3,390万円

  3. 平塚市寺田縄

    4LDK (101.43㎡)

    2,980万円

  4. 平塚市広川

    6SLDK (167.69㎡)

    2,980万円

よく見られている物件

  1. 鎌倉市材木座5丁目

    2LDK (86.44㎡)

    8,580万円

  2. 鎌倉市大町6丁目

    4DK (66.09㎡)

    1,980万円

  3. 平塚市田村5丁目

    4LDK (95.58㎡)

    2,580万円

  4. 藤沢市立石2丁目

    4LDK (91.48㎡)

    3,400万円

平塚市南豊田第5 新築一戸建て 全2棟

お気軽にお問い合わせください

無料お問い合わせ

湘南人不動産

0466-47-4990

09:00~18:00

(休:火曜日・水曜日)