平塚市田村1丁目 新築戸建  1号棟

3,280万円

神奈川県平塚市田村1丁目

東海道本線「平塚」駅バス14分神奈川中央交通「鹿見堂」停歩6分

相模線「門沢橋」駅バス14分神奈川中央交通「平塚市リサイクルプラザ」停歩7分

小田急小田原線「伊勢原」駅バス27分神奈川中央交通「横内団地前」停歩11分

価格
3,280万円
間取り
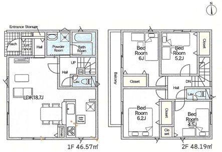
4LDK
土地面積
110.68㎡
所在地
神奈川県平塚市田村1丁目
交通

東海道本線平塚」駅 バス14分 神奈川中央交通「鹿見堂」 停歩6分

相模線門沢橋」駅 バス14分 神奈川中央交通「平塚市リサイクルプラザ」 停歩7分

小田急小田原線伊勢原」駅 バス27分 神奈川中央交通「横内団地前」 停歩11分

建物面積
94.76㎡
築年月
2025年11月(予定)

物件の特徴

  • バストイレ別

  • 室内洗濯機置場

  • TVモニタ付きインターホン

  • カウンターキッチン

  • 浴室乾燥機

セールスポイント

こだわりで選びたい方におすすめ。平塚市エリアで住まいをお探しなら「平塚市田村1丁目 新築戸建 」。平坦地かどうかで、日々の暮らしやすさが変わります。多くの方からこだわり条件でいただく新築戸建ての物件です。こちらの物件は3,280万円です。夢のマイホームを平塚市の東海道本線平塚付近で探しましょう。きっと素敵な一戸建てが見つかりますので、まずは当社までお問い合わせ下さい。

ポイント

三面鏡付洗面化粧台 前面道路との高低差無し 更新対策 ファミリー向け 駐車並列2台

担当者のコメント

児玉 (こだま)

魅力が満載の素敵な4LDK物件の情報をご用意しています。日常生活で利用頻度の高い水回りだからこそ、使い勝手のいいシステムキッチンを選んでみませんか。建物面積は94.76平米となっており広さも十分ではないでしょうか。新築戸建ての物件は清潔感もあり、快適な生活が可能です。当社で納得のできる住まい選びをしませんか。住環境をより良いものにしていきましょう。当社では数多くの不動産情報を取り扱っております。

基本情報

販売戸数
1戸
総戸数
1戸
間取り / 詳細
4LDK
向き
-
建物面積(坪数)
94.76㎡(28.66坪)
土地面積(坪数)
110.68㎡(33.48坪)
建ぺい率 /
容積率
60%/200%
築年月
2025年11月(予定)
駐車場 /
月額料金
有 0円 (並列2台+1台・車種によります)
土地権利
所有権
土地
(敷金 / 保証金)
- / -
建物構造
木造 / 2階建
傾斜地部分面積
-
路地状敷地
-
私道負担面積
-
セットバック
高圧線下面積
-
施工会社
-
用途地域
準工業
地目 / 地勢
宅地 / -
接道状況
一方(西 4.5m)
国土法届出要否
不要
都市計画
市街化区域
総区画数 /
販売区画数
1区画/1区画
現況
未完成
その他
法令上の制限
文化財保護法/景観法/高度地区
取引態様
仲介
引渡し
相談
取引条件の
有効期限
2025年12月18日

設備条件

設備条件
  • 陽当り良好 / 閑静な住宅地 / 新婚さん向け / ファミリー向け / 室内洗濯機置場 / フローリング / プロパンガス / 公営水道 / 公共下水 / 電気有 / 駐車3台可 / 耐震構造 / ガスコンロ / コンロ2口以上 / システムキッチン / カウンターキッチン / コンロ3口 / バス・トイレ別 / 浴室乾燥機 / 温水洗浄便座 / トイレ2ヶ所 / 床下収納 / 収納豊富 / TVモニタ付インターホン / 複層ガラス / ディンプルキー
設備(その他)
    -

その他

物件番号
98227858
管理コード
-
建築確認番号
第KBI-SGM25-10-2363号
情報更新日
2025年12月04日
次回更新予定日
2025年12月18日
取扱会社
  • 湘南人不動産
  • 神奈川県藤沢市片瀬海岸1丁目12−4 ヴィルヌーブ片瀬江の島 1F
  • TEL:0466-47-4990
  • 国土交通大臣 (1) 第10616号
備考
ぜひ一度見ていただきたい、「平塚市田村1丁目 新築戸建 」です。価格3,280万円のお住まいはこちらです。スーパーが近くにあるので、買い物が楽です。システムキッチン付きの物件です。一戸建て購入時の不安を、豊富なスタッフが解消いたします。平塚市の東海道本線平塚周辺でマイホームを求めるのであれば、お気軽にお問い合わせください。

周辺施設

  • しまむらストアー 田村店の画像

    スーパー

    しまむらストアー 田村店

    290m(4分)

  • ドンキホーテの画像

    ショッピングセンター

    ドンキホーテ

    644m(9分)

  • セブンイレブン 平塚田村店の画像

    コンビニエンスストア

    セブンイレブン 平塚田村店

    738m(10分)

  • マックスバリュ 平塚四之宮店の画像

    スーパー

    マックスバリュ 平塚四之宮店

    1817m(23分)

  • デイリーヤマザキ 平塚田村4丁目店の画像

    コンビニエンスストア

    デイリーヤマザキ 平塚田村4丁目店

    1848m(24分)

  • 平塚四之宮郵便局の画像

    郵便局

    平塚四之宮郵便局

    2059m(26分)

  • 渡辺医院の画像

    内科

    渡辺医院

    2072m(26分)

  • ファミリーマートの画像

    コンビニエンスストア

    ファミリーマート

    2182m(28分)

  • 一之宮相和幼稚園の画像

    幼稚園

    一之宮相和幼稚園

    2999m(38分)

支払いシミュレーション

月々の支払額
9.6
購入希望物件価格
万円
頭金
万円
金利
%
返済額(ボーナス1回分)
万円
返済期間

※ボーナスは自動で年2回分で計算されます。

近隣の物件

  1. 平塚市ふじみ野2丁目 新築戸建 全1棟

    平塚市ふじみ野2丁目

    4LDK (105.99㎡)

    3,880万円

  2. 平塚市御殿4丁目 中古一戸建て

    平塚市御殿4丁目

    4LDK (101.84㎡)

    2,680万円

  3. 平塚市横内 新築一戸建て

    平塚市横内

    4LDK (98.74㎡)

    3,280万円

  4. 平塚市南豊田第5 新築一戸建て 全2棟

    平塚市南豊田

    4LDK (97.60㎡)

    2,880万円

平塚市田村1丁目  新築戸建 

平塚市田村1丁目 新築戸建 

3,280万円

-

4LDK(94.76㎡)

お気軽にお問い合わせください

無料お問い合わせ

湘南人不動産

0466-47-4990

09:00~18:00

(休:火曜日・水曜日)